ReRender

度假村,
曲线有机
原始图片
Source Image
上传于
生成图片(768x1096)
source
0.29%
Result Images
Result Images
Result Images

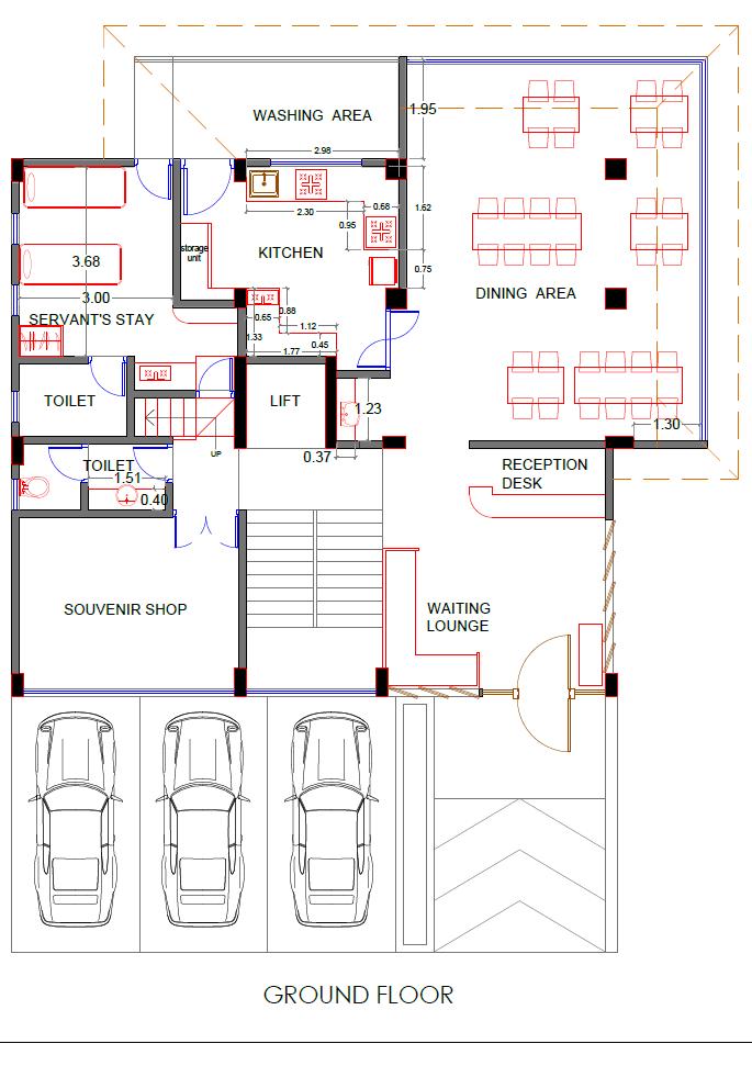
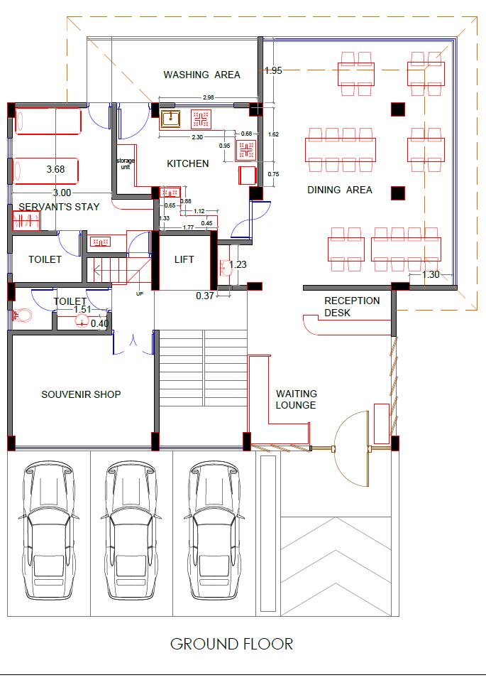
An incredibly lifelike, richly detailed, photorealistic aerial shot of a resort's ground floor captured during a vibrant summer sunset, casting warm, golden light across the scene. The entrance to the resort is framed by elegant wooden pivot windows and a substantial wooden entrance door, hinting at the luxurious experience within. To the right, the dining area exudes an air of luxury and elegance, with tables set for intimate dinners and larger gatherings, illuminated by warm ambient lighting. Potted plants strategically placed add touches of natural vibrancy to the sophisticated setting. A long, gleaming buffet counter stretches along the far wall, promising an exquisite culinary journey. The dining area's medium grey flooring reflects the ambient light, enhancing its polished feel. Adjacent to the dining space, a welcoming reception area features a sleek desk and opens into a waiting lounge, both adorned with soft beige flooring, inviting guests to relax. The backdrop reveals the practical areas: a minimal staff area and kitchen rendered in muted colors, ensuring efficiency without detracting from the guest experience. Beyond the reception, a souvenir shop offers a glimpse of local crafts. A striking black and white granite staircase ascends, adding a graphic contrast to the predominantly light grey flooring found throughout the rest of the interior spaces. To the left, a dedicated parking area with three cars parked neatly implies accessibility for guests arriving in style. The overall atmosphere is one of curated elegance and serene luxury, perfectly embodying a summer resort getaway.


Use the extensionSketchUp
Follow usInstagramYouTubeLinkedIn
Join the discussionReddit