ReRender

餐厅,
再利用工厂
原始图片
Source Image
上传于
生成图片(1416x768)
source
1.25%
Result Images
Result Images
Result Images

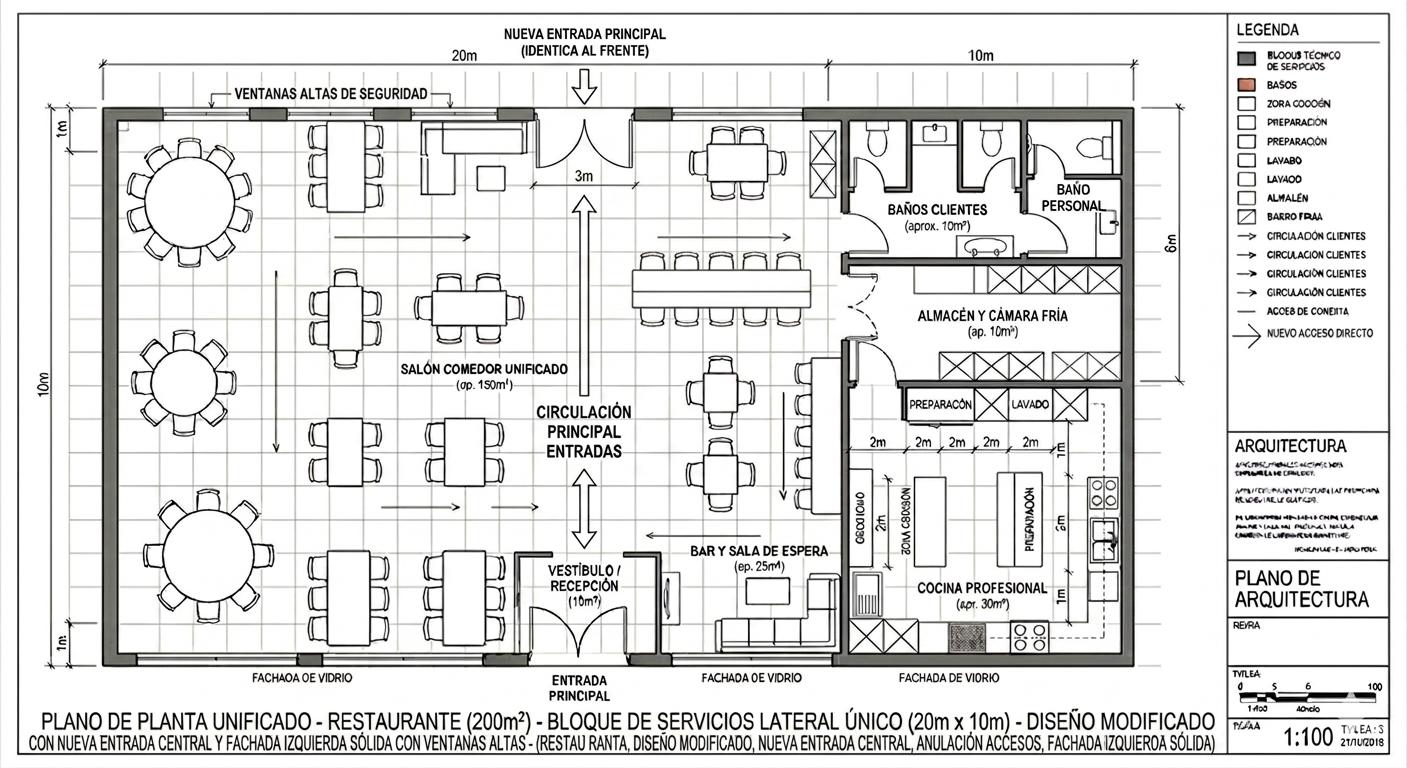
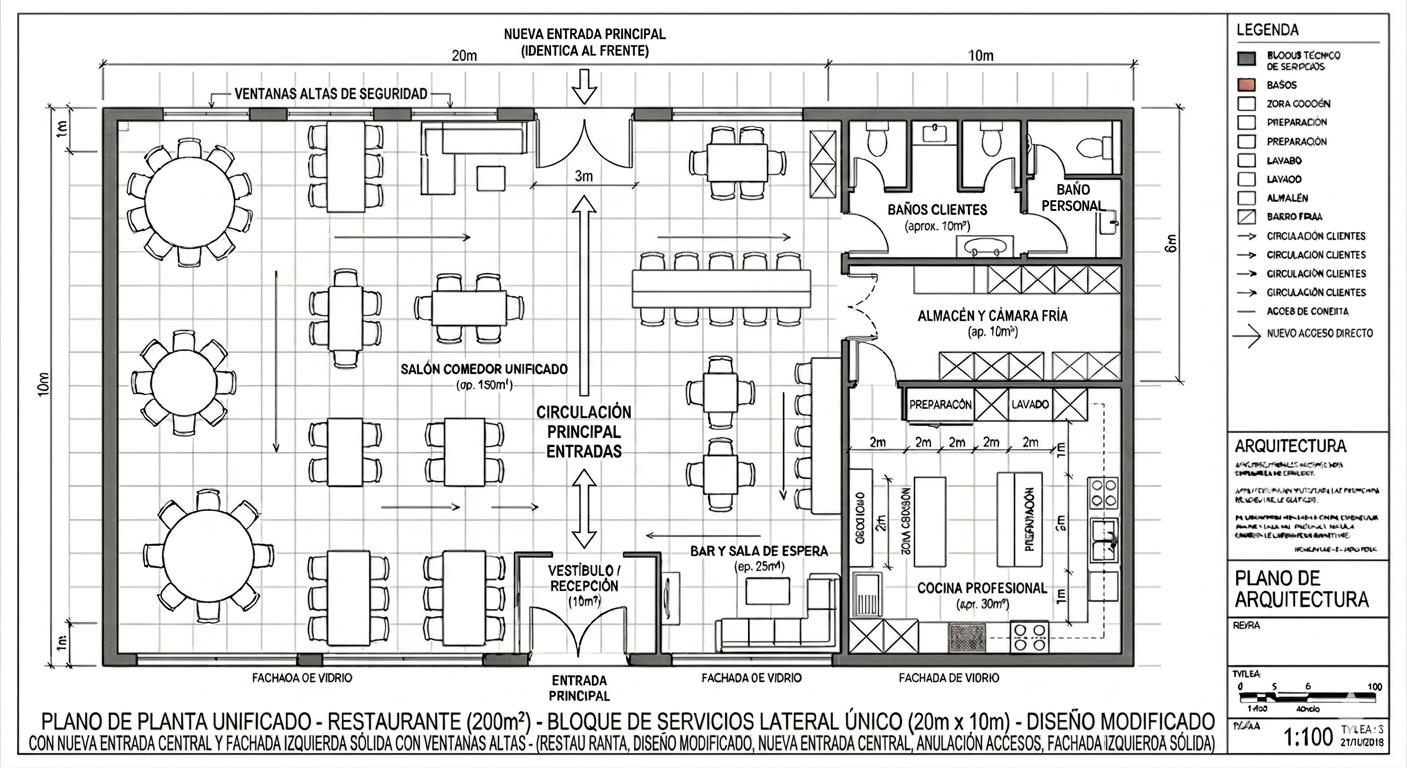
An incredibly lifelike, richly detailed, photorealistic floorplan photograph of a bustling restaurant interior, possibly within a repurposed factory setting, is presented. The scene is illuminated by clean, bright overhead lighting, creating a functional and welcoming atmosphere, perhaps indicating a daylight commercial operation. Captured with a wide-angle lens from a slightly elevated perspective, the photograph emphasizes the spacious layout and the arrangement of furniture – numerous round and rectangular tables, some set for intimate groups, others for larger gatherings, populate the main dining area. The textures of polished tabletops and the stylized outlines of chairs are rendered with high precision. Dominant elements include a large, central reception and waiting area, complete with a comfortable-looking lounge, leading towards the primary entrance. Beyond, a long, communal dining table suggests a space for group events. To the right, a clearly defined service area includes customer restrooms, a significant cold storage and warehouse space, and a professional kitchen equipped with prep stations, sinks, and cooking equipment. The floorplan's stark lines and labeled zones, simulating blueprints, are rendered with an almost tactile quality, hinting at the underlying industrial origins of the space with implied concrete floors and expansive open areas. The composition is meticulously organized, showcasing efficient use of space from the entrance and reception, through the dining areas, to the operational heart of the kitchen and storage. The depth is evident in the clear delineation of different zones, suggesting ample room for circulation, with subtle shadows implicitly defining the boundaries between spaces.


Use the extensionSketchUp
Follow usInstagramYouTubeLinkedIn
Join the discussionReddit