ReRender

单户家庭住宅,
悬臂当代
原始图片
Source Image
上传于
生成图片(800x768)
source
2.97%
Result Images
Result Images
Result Images

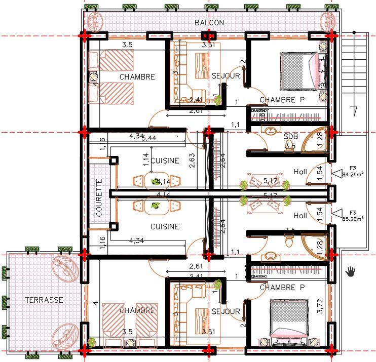
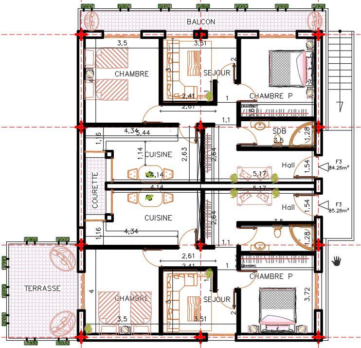
An incredibly lifelike, richly detailed, photorealistic floorplan photo of a single-family home with cantilevered contemporary elements. The scene is illuminated by bright, even lighting, creating a functional and airy atmosphere. Captured with a wide-angle lens, emphasizing the clear layout and interconnectedness of the living spaces, the photograph details the various rooms: bedrooms labeled "CHAMBRE," kitchens labeled "CUISINE," living areas labeled "SEJOUR," and bathrooms labeled "SDB." The meticulous annotations and dimensions, appearing as if etched into the surfaces, provide a precise overview of the architecture, with distinct balconies labeled "BALCON" and a terrace area labeled "TERRASSE," hinting at outdoor living spaces. The composition is meticulously organized, showcasing the thoughtful design and flow of the residence. The depth perception is excellent, with clear spatial relationships between each area, leading the eye through the entire floorplan. The focus is sharp throughout, providing a comprehensive and informative visual representation of the home's structure.


Use the extensionSketchUp
Follow usInstagramYouTubeLinkedIn
Join the discussionReddit