ReRender

合作住房社区,
生态未来主义
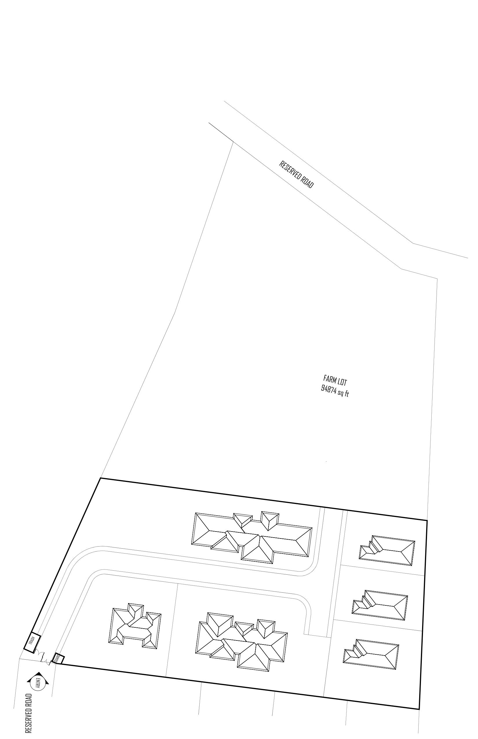
原始图片
Source Image
上传于
生成图片(768x1192)
source
4.25%
Result Images
Result Images
Result Images

An incredibly lifelike, richly detailed, photorealistic aerial photo of a co-housing community nestled in a lush, tropical environment. The scene is illuminated by bright, natural sunlight, creating a vibrant and inviting atmosphere. Captured with a wide-angle lens, emphasizing the organic sprawl of the eco-futuristic architecture against swathes of dense green foliage. The individual dwellings, with their unique, asymmetrical rooflines and integrated green spaces, cluster around curving pathways and communal areas. Hints of advanced, sustainable building materials are suggested through subtle textures and color variations that would be present in a high-resolution photograph. In the distance, a "reserved road" is faintly visible, hinting at the community's connection to the outside world, while the characteristic outline of the "farm lot" with its measured area indicates self-sufficiency. The overall impression is one of harmonious integration between advanced design and a thriving natural ecosystem.


Use the extensionSketchUp
Follow usInstagramYouTubeLinkedIn
Join the discussionReddit