ReRender

办公大楼,
曲线有机
原始图片
Source Image
上传于
生成图片(768x1280)
source
1.62%
Result Images
Result Images

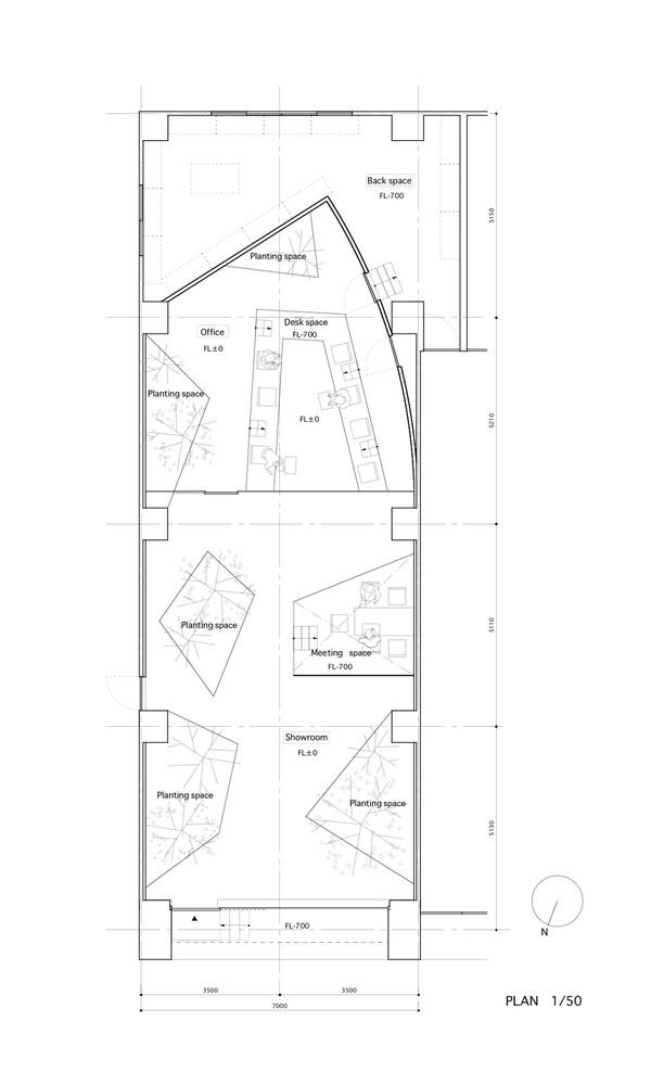
An incredibly lifelike, richly detailed, photorealistic floorplan photo of a modern office building interior. The scene is illuminated by bright, diffused overhead lighting, creating a clean, professional atmosphere. Captured with a wide-angle lens from an elevated perspective, the photograph showcases a long, slender space divided into distinct zones. To the left, organic, amorphous shapes represent "planting spaces" filled with the delicate silhouettes of scattered trees and foliage, their branches artfully rendered with fine lines. Further up, a compact "office" space is depicted, with small desks occupied by minimal figures, suggesting focused individual work. Adjacent to this, a slightly angled "desk space" area features more workstations and personnel in lively discussion. The right side of the plan is defined by a gracefully curving wall that separates these work areas from a larger "showroom" space at the bottom, also featuring irregular planting zones. The overall composition reveals a thoughtful integration of natural elements within a utilitarian, yet aesthetically pleasing, corporate environment.


Use the extensionSketchUp
Follow usInstagramYouTubeLinkedIn
Join the discussionReddit