ReRender

单户家庭住宅,
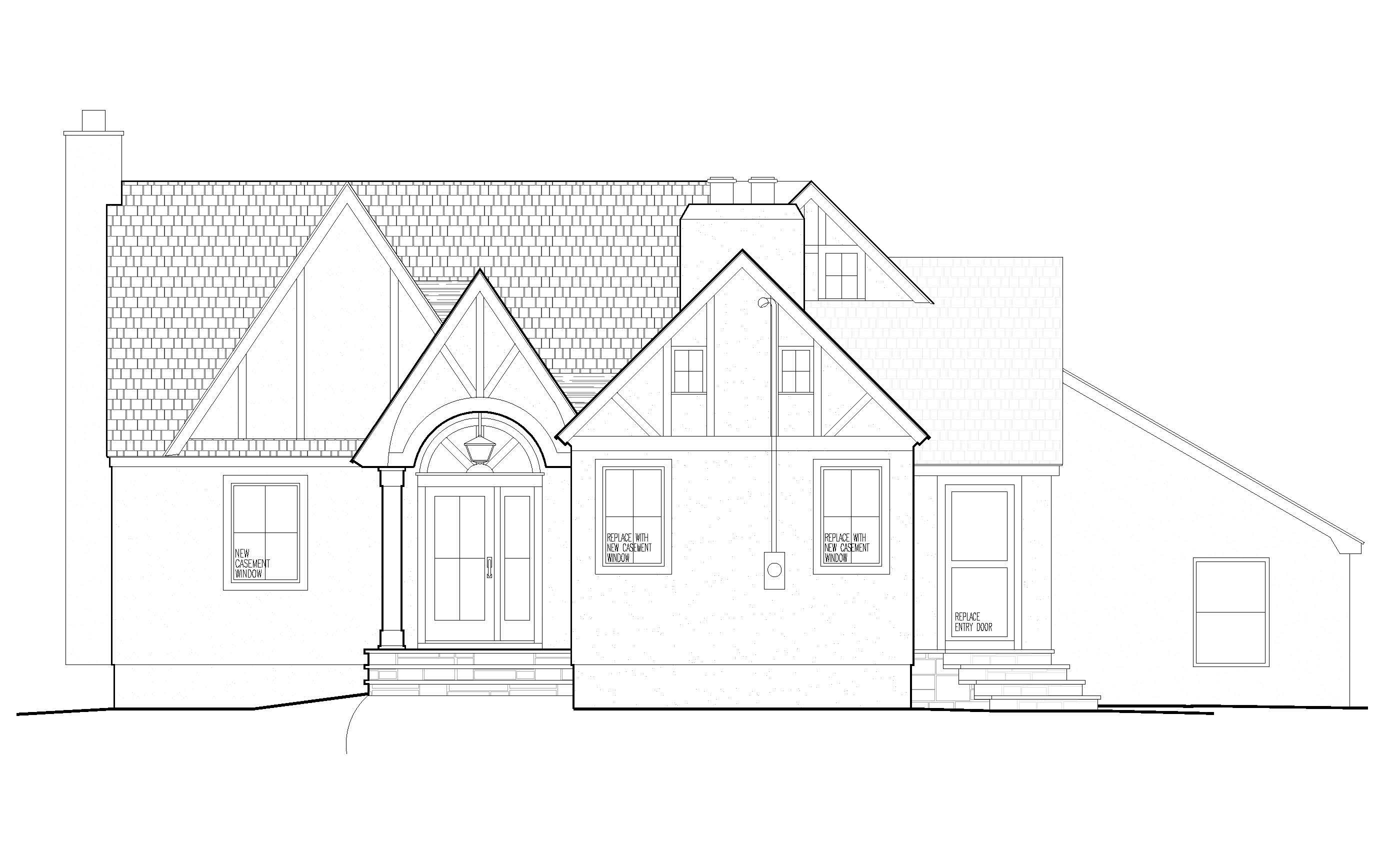
複杂都铎式
原始图片
Source Image
上传于
生成图片(1272x768)
source
4.76%
Result Images

An incredibly lifelike, richly detailed, photorealistic architectural photograph of an intricate Tudor-style single-family home, captured during a cloudy spring sunset. The scene is illuminated by the soft, diffused golden light of the setting sun filtering through an overcast sky, creating a warm yet subtly dramatic atmosphere. The off-white stucco of the home's walls exhibits a slight textured grain, providing a gentle contrast to the deep, warm brown of the half-timbering that accentuates the prominent front gables. A newly constructed central entrance gable, subtly set back approximately eighteen inches from the main front gable, features a more defined architectural profile. Dark brown window trims frame black window frames and grilles, their reflective surfaces catching the muted sunset hues. The home is nestled within a vast, verdant grassland; the blades of grass appear soft and slightly damp from a recent shower, their green vibrant under the twilight sky. The composition, likely captured with a wide-angle lens, emphasizes the home's classic Tudor elements while also showcasing its integration into the open, windswept landscape, with a shallow depth of field ensuring the intricate details of the architecture remain sharply in focus against a gently blurred natural backdrop.


Use the extensionSketchUp
Follow usInstagramYouTubeLinkedIn
Join the discussionReddit