平衡


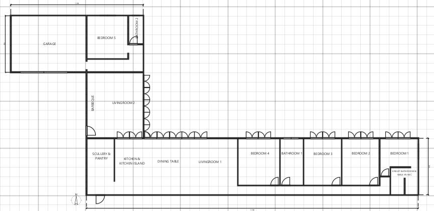
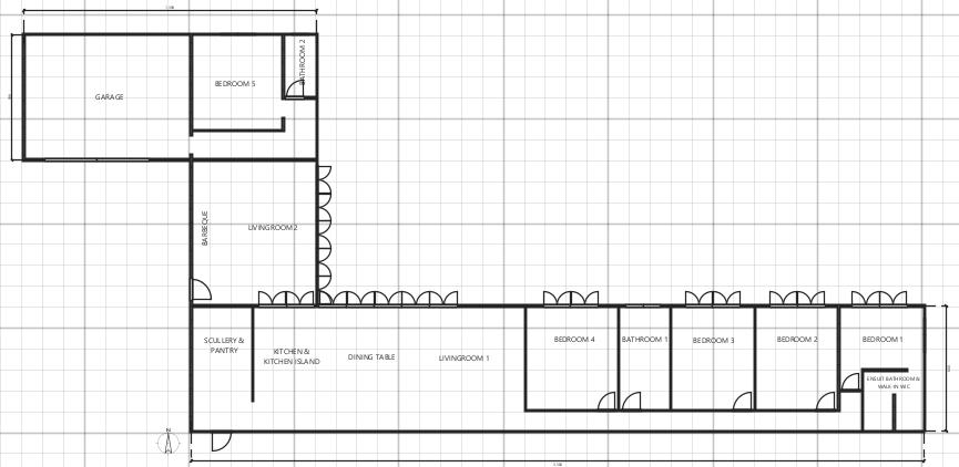
An incredibly lifelike, richly detailed, photorealistic floorplan photograph of a modern farmhouse with a distinct L-shaped layout. The scene is illuminated by a neutral, ambient light, creating a clean and spacious atmosphere, as if captured from a birds-eye view with a wide-angle lens, emphasizing the architectural elements and spatial flow. The structure features a prominent garage on the left wing, connected to a series of interconnected living spaces and bedrooms. Cement floors are clearly visible throughout, lending a raw, utilitarian aesthetic. The main living area, labeled "Livingroom 1," boasts expansive stack doors that open outwards along its entire length, suggesting a seamless transition to an outdoor space and allowing for abundant natural light. Adjacent to this is "Dining Table" and a combined "Kitchen & Kitchen Island" area, featuring sleek, minimalist white and black built-in cupboards (BIC's). A "Scullery & Pantry" is conveniently located next to the kitchen. This wing also includes "Livingroom 2," which features a series of arched doorways leading outside. Extending to the right is a corridor lined with multiple bedrooms, each clearly marked with its own individual door explicitly opening outwards, a design element characteristic of a modern farmhouse approach for bedroom accessibility. Several bathrooms are integrated, including an "Ensuit Bathroom & Walk-in WC" connected to "Bedroom 1." The overall impression is one of functional, modern design with a touch of minimalist elegance, highlighting the connectivity between indoor and outdoor living.