ReRender

单户家庭住宅,
工业时尚联排别墅
原始图片
Source Image
上传于
生成图片(1216x768)
source
2.94%
Result Images
Result Images
Result Images

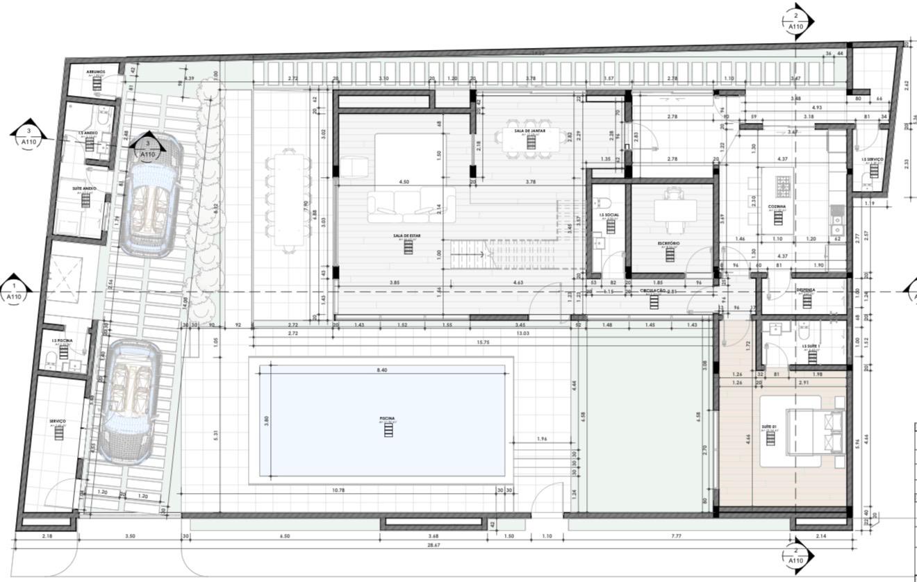
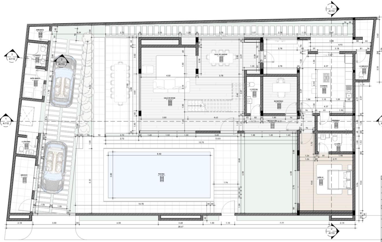
An incredibly lifelike, richly detailed, photorealistic aerial floorplan photo of a spacious, modern single-family home integrated with some industrial chic townhouse elements, captured at sunset during a clear spring day, creating a warm, inviting atmosphere. The meticulously rendered architectural plan showcases the interior layout with clean lines and strategic lighting hints suggesting the time of day. We can envision the layout of spacious living and dining areas, a sleek kitchen, multiple bedrooms including a master suite, a private office, and service areas, all connected by a central circulation path. Outside, the plan details a inviting swimming pool and a driveway with two cars, hinting at a luxurious lifestyle. The surrounding environment appears to be a well-maintained property, suggesting a tranquil, affluent neighborhood. The composition is a precise, top-down view, allowing for a clear understanding of the flow and dimensions of the house, with an emphasis on the geometric precision of the architectural design. The overall impression is one of sophisticated design and comfortable living, perfectly poised for enjoying a beautiful spring evening.


Use the extensionSketchUp
Follow usInstagramYouTubeLinkedIn
Join the discussionReddit