ReRender

单户家庭住宅,
生物形态
原始图片
Source Image
上传于
生成图片(1376x768)
source
2.25%
Result Images
Result Images
Result Images

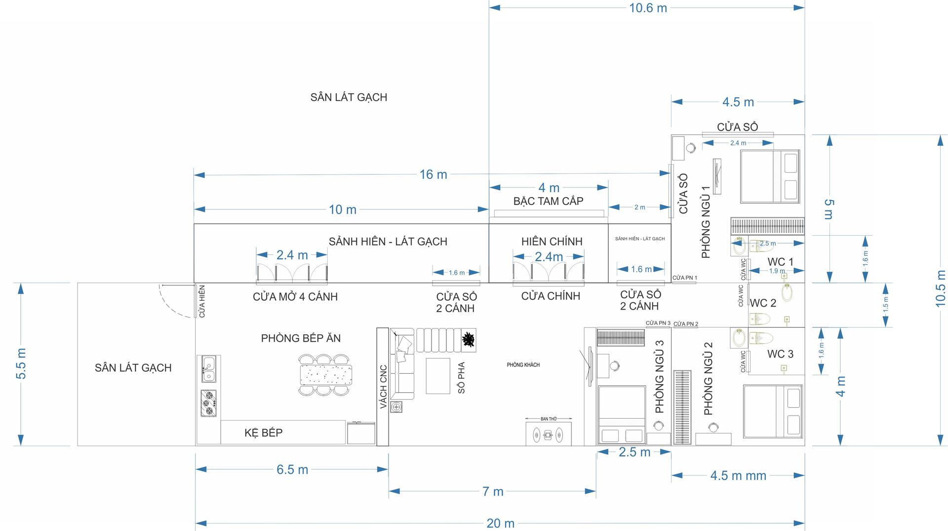
An incredibly lifelike, richly detailed, photorealistic top-down photograph of a single-family home floor plan, captured as if from a drone or aerial perspective, set within the context of an architectural blueprint. The scene is illuminated by clear, ambient light, like that found in a well-lit design studio, creating a clean and informative atmosphere. Captured with a high-resolution, wide-angle lens, this "photograph" emphasizes the intricate architectural details, smooth lines of doors, and the biomorphic arrangement of interior spaces. The tiled flooring is rendered with subtle variations in tone, and the furniture, though minimalistic, suggests everyday living. Distinct areas like the kitchen, dining, living room, and multiple bedrooms and bathrooms are clearly delineated, with their purpose and dimensions meticulously indicated by precise annotations. The overall composition is a masterful, almost organic, layout, with the various rooms flowing into one another in a manner that feels natural and efficient for a modern residence. There's a sense of depth created by the layering of information – walls, furniture, and annotations – on a flat plane, inviting the viewer to mentally traverse the entire dwelling.


Use the extensionSketchUp
Follow usInstagramYouTubeLinkedIn
Join the discussionReddit