ReRender

单户家庭住宅,
光滑国际风
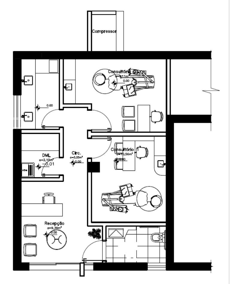
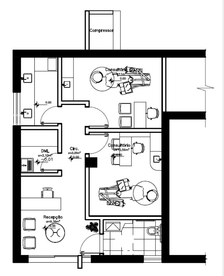
原始图片
Source Image
上传于
生成图片(768x952)
source
3.32%
Result Images
Result Images
Result Images

An incredibly lifelike, richly detailed, photorealistic floorplan photo of a sleek, international-style clinic interior. The scene is illuminated by bright, sterile overhead lighting, creating a clean and efficient atmosphere. Captured with a wide-angle lens, emphasizing the functional layout and spaciousness of the individual rooms. The composition reveals a reception area with modern seating and a desk, leading to two consultation rooms, each equipped with dental chairs, cabinetry, and examination lights. A separate area clearly marked as "Compressor" suggests specialized equipment is housed discreetly. The perspective offers a clear, top-down view, showcasing the precise placement of each element, from the sinks in the DML (Dental Material Laboratory) area to the compact, well-appointed restroom in the corner. The stark black and white lines convey a sense of order and advanced design, typical of a high-end architectural rendering brought to life.


Use the extensionSketchUp
Follow usInstagramYouTubeLinkedIn
Join the discussionReddit