ReRender

风格参考
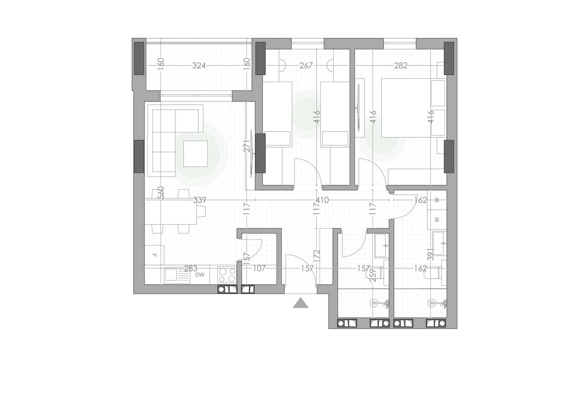
原始图片
Source Image
上传于
生成图片(1088x768)
source
0.23%
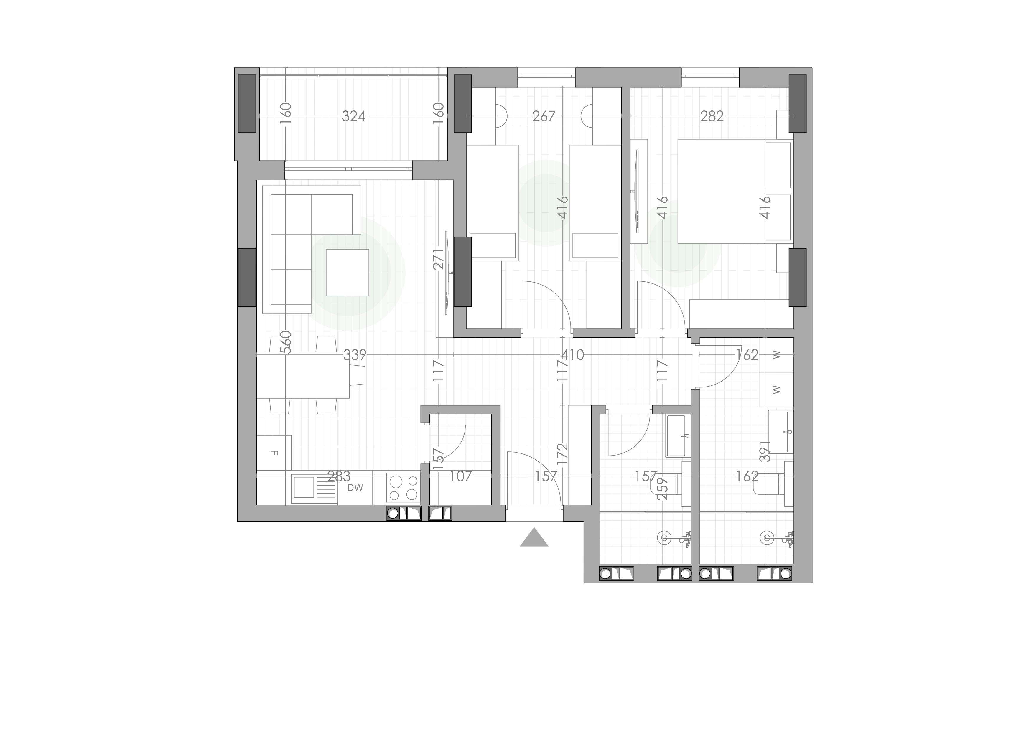
Result Images
Result Images
Result Images
angle

An incredibly lifelike, richly detailed, photorealistic floorplan photo of a modern apartment layout. The scene is illuminated by clean, even lighting, creating a professional and informative atmosphere. Captured with a wide-angle lens from a bird's-eye perspective, the photograph showcases the meticulous details of the architectural plan. The flooring in the living and dining areas appears as light-toned wood planks, creating a warm and inviting texture. The kitchen area features a sleek countertop with a sink and depicted appliances, suggesting a functional and contemporary space. The bedrooms and living room are furnished with minimalist representations of furniture, including a sectional sofa, a dining table with chairs, beds, and what appears to be a vanity or dresser. Subtle green circular gradients indicate lighting or functional zones within the rooms. Thick grey lines delineate the walls and structural elements, emphasizing the apartment's form and dimensions, with precise numerical callouts providing detailed measurements for each space. The composition is precise, allowing for a clear understanding of the flow between rooms, the placement of windows, doors, and plumbing fixtures. The background is a stark white, ensuring that all focus remains on the apartment's layout and design. The perspective is clear and unobstructed, allowing for a comprehensive spatial understanding of the entire dwelling.


Use the extensionSketchUp
Follow usInstagramYouTubeLinkedIn
Join the discussionReddit