ReRender

单户家庭住宅,
玻璃极简
原始图片
Source Image
上传于
生成图片(1360x768)
source
4.86%
Result Images
Result Images
Result Images

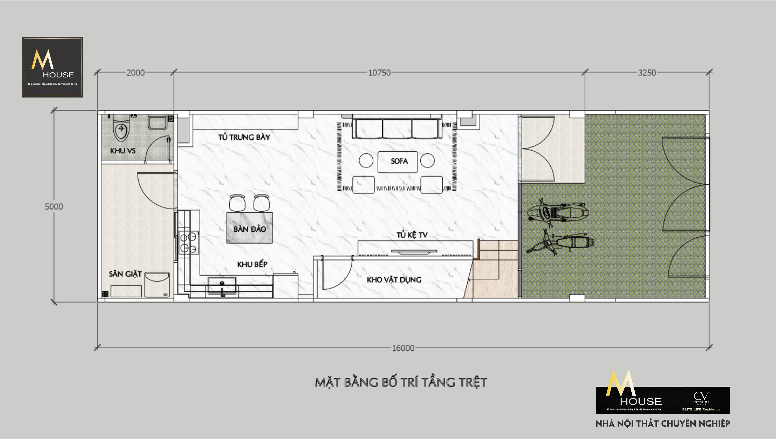
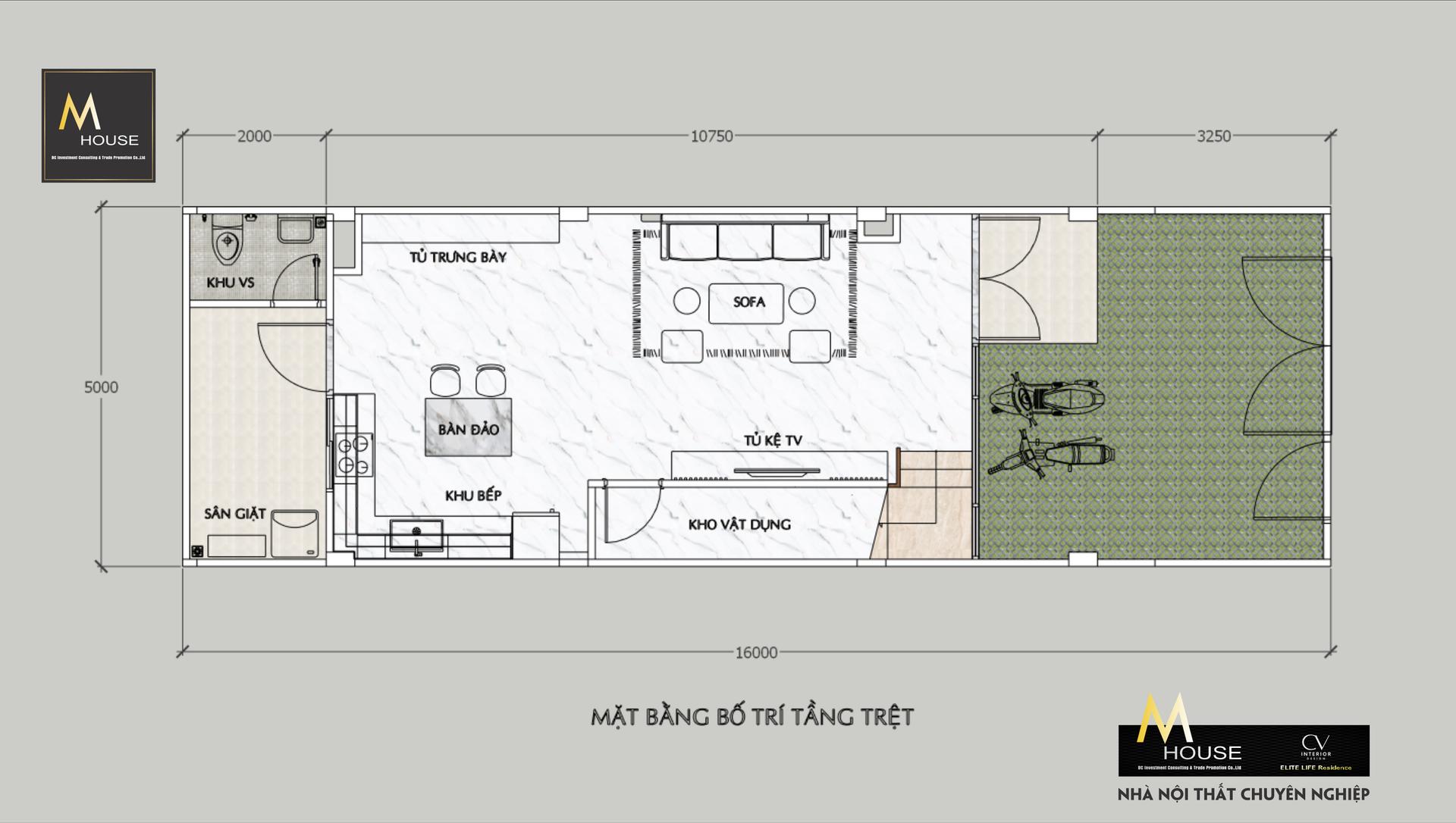
An incredibly lifelike, richly detailed, photorealistic aerial floor plan of a modern single-family home, captured as if from a drone's perspective during midday in autumn. The scene is illuminated by bright, diffused sunlight, creating a neutral and clear atmosphere, perfect for architectural visualization. The layout is meticulously presented, showcasing a minimalist design with clean lines and an inviting feel, emphasizing glassy elements and a sense of expansive space. The floor plan reveals a well-appointed interior, featuring distinct zones for living, dining, and kitchen, all unified by a sophisticated marble-patterned flooring that extends throughout the main living areas. Adjacent to the living space, a compact kitchen area is equipped with modern cabinetry and appliances, while a dedicated laundry area is tucked away near the entrance. The home also includes a private bathroom and a versatile storage space, designed for functionality. The far end of the home opens up to a designated area that appears to be a small gym or recreational space, furnished with two exercise bikes, and a green-patterned floor adding a subtle touch of texture. The architectural rendering is precise, with dimensions subtly indicated, allowing for a clear understanding of the scale and flow of the residence. The overall impression is one of sophisticated simplicity and thoughtful organization, conveying a warm and welcoming ambiance within a contemporary aesthetic.


Use the extensionSketchUp
Follow usInstagramYouTubeLinkedIn
Join the discussionReddit