ReRender

公寓,
光滑国际风
原始图片
Source Image
上传于
生成图片(768x1160)
source
0.26%
Result Images
Result Images
Result Images

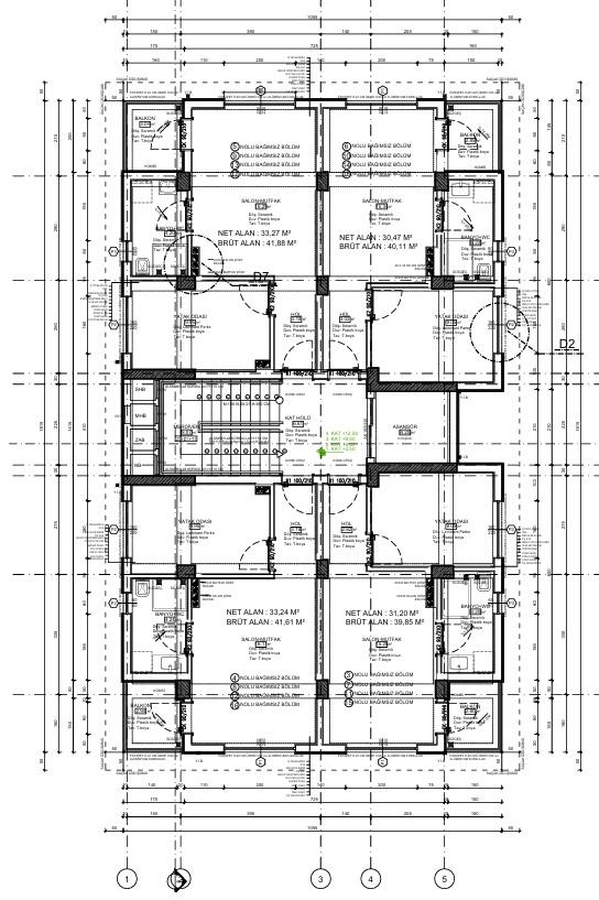
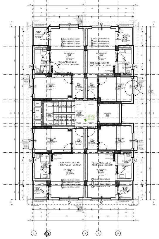
An incredibly lifelike, richly detailed, photorealistic overhead floorplan photograph of a modern condominium layout. The scene is illuminated by crisp, even lighting, creating a clean and technical atmosphere indicative of architectural documentation. Captured with a wide-angle lens from a high vantage point, emphasizing the precise layout and dimensions of multiple residential units and common areas. The visible elements include distinct rooms labeled in clear text, indicating living spaces, kitchens, bathrooms, and hallways, all delineated by precise, thin black lines representing walls. Annotations like "NET ALAN" and "BRUT ALAN" along with numerical values detailing square meterage are clearly legible, providing essential data. Hatching indicates solid structural elements and shadowed areas, adding a sense of depth and materiality to the blueprint. The overall impression is one of a sleek, international design, with a logical and efficient arrangement of interior spaces, suggesting a high-quality construction project. The external dimensions and grid lines further reinforce the technical nature of the image, presenting a highly organized and detailed plan.


Use the extensionSketchUp
Follow usInstagramYouTubeLinkedIn
Join the discussionReddit