ReRender

配送中心,
动态参数化
原始图片
Source Image
上传于
生成图片(768x1088)
source
1.40%
Result Images

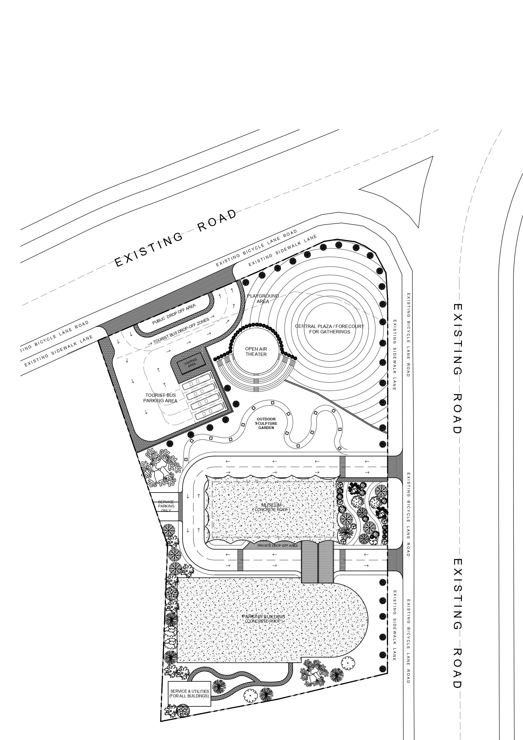
An incredibly lifelike, richly detailed, photorealistic floorplan photo of a modern complex of buildings. The scene is illuminated by a bright, even light, creating a clear and organized atmosphere. Captured with a high-resolution camera, emphasizing the precise lines of the concrete structures and the intricate layout of the surrounding grounds. The image showcases a distribution center with a vast, speckled concrete roof, connected by walkways to other buildings, one appearing to be a museum with a similar textured roof. Surrounding these are areas designated for a central plaza, an open-air theater with tiered seating, an outdoor sculpture garden, and a playground. The entire complex is integrated with flowing pathways, including bicycle lanes, sidewalks, and drop-off zones for public and tourist buses. Driveways with directional arrows weave through the scene, leading to parking areas and service access points, dotted with stylized trees and greenery, indicative of a meticulously planned urban or parkland environment. The overall composition is a dynamic parametric design, showcasing a sense of flow and structured distribution across the entire area, with elements precisely laid out in a clear, top-down perspective.


Use the extensionSketchUp
Follow usInstagramYouTubeLinkedIn
Join the discussionReddit