ReRender

风格参考
原始图片
Source Image
上传于
生成图片(1192x768)
source
3.01%
Result Images
Result Images
Result Images
angle

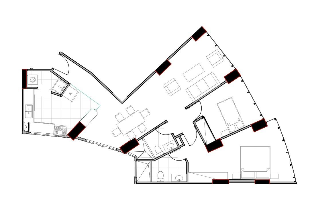
An incredibly lifelike, richly detailed, photorealistic aerial photograph of a modern apartment floor plan. The scene is illuminated by a neutral, even light, creating a clear and informative atmosphere. Captured with a high-resolution overhead view, emphasizing the precise lines and proportional layout of the living space. The photograph meticulously outlines distinct areas for a kitchen with counters, a sink, and appliances, a dining area with a table and chairs, a living room with sofas and a coffee table, two spacious bedrooms, and multiple bathrooms, each depicted with essential fixtures. The floor plan is rendered in stark black and white, highlighting the architectural divisions and furniture placement with crisp detail. Red accents mark specific features, possibly denoting windows or designated zones, adding subtle visual interest. The spatial relationships are clearly defined, showcasing the flow between rooms and the overall configuration of the apartment. The photograph offers a complete, unobstructed view, akin to a ceiling-mounted camera showcasing the entirety of the interior layout without any obstruction.


Use the extensionSketchUp
Follow usInstagramYouTubeLinkedIn
Join the discussionReddit